Pläne für zweiten Bauabschnitt am Volkspark liegen aus Kamp-Lintfort wächst weiter

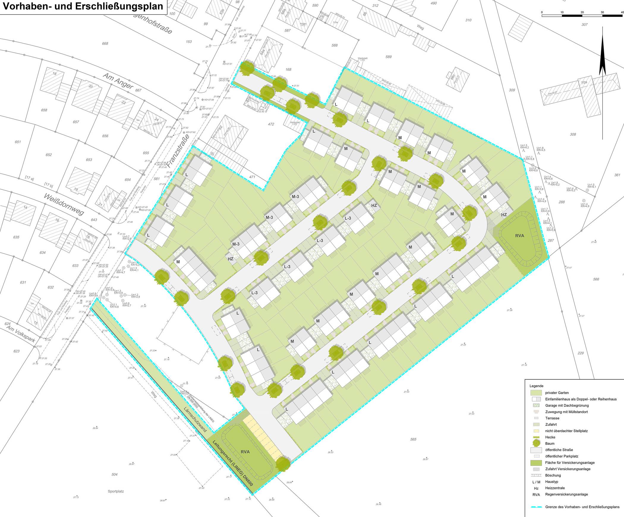
Kamp-Lintfort · Gegenüber dem Wohngebiet am Volkspark im Osten der Altsiedlung soll schon bald der zweite Bauabschnitt realisiert werden. Auf dem ehemaligen Betriebsgelände der Firma Holstein beabsichtigt die VISTA Reihenhaus GmbH die Errichtung von 83 Einfamilienhäusern.

Der Bebauungsplan wurde nun für die interessierte Öffentlichkeit auf der städtischen Internetseite unter www.kamp-lintfort.de/toeb veröffentlicht.

Foto: Stadt Kamp-Lintfort

„Die Planungen dazu befinden sich nun auf der Zielgerade“, wie Monika Fraling, Leiterin des Planungsamtes, zu berichten weiß. Stadt und Bauträger haben im vergangenen Jahr gemeinsam den Entwurf des Bebauungsplans fertiggestellt. Mit der Erweiterung des Wohngebietes am Volkspark möchte die Stadt der anhaltenden Nachfrage nach Wohngrundstücken nachkommen. Im Programm des Baauträgers sind dabei zwei Haustypen mit 110m² oder 130m² Wohnfläche. Zugleich soll auf dem Gelände eine sechsgruppige Kita gebaut werden.

Der Bebauungsplan wurde nun für die interessierte Öffentlichkeit auf der städtischen Internetseite unter www.kamp-lintfort.de/toeb veröffentlicht. Eine wie sonst übliche Einsichtnahme der Unterlagen im Rathaus ist angesichts der aktuellen Kontaktbeschränkungen nicht möglich. „Wer Fragen oder Anregungen hat, kann sich aber jederzeit telefonisch oder per E-Mail an das Planungsamt wenden“, so Fraling weiter. In bestimmten Fällen können die Unterlagen auch postalisch zugesandt werden. Die Beteiligung der Öffentlichkeit läuft noch bis zum 22. März. Anschließend soll der Bebauungsplan beschlossen und rechtskräftig werden. Mit der Erschließung des Geländes und dem Bau der neuen Häuser soll noch in 2021 begonnen werden.

Schon jetzt können sich Kaufinteressenten für den Vertriebsstart per E-Mail unter vertrieb@vista-reihenhaus.de direkt beim Bauträger vormerken lassen.